Nejvyšší podání učinil účastník dražby
vyhlášená
Nový horský apartmán
(55,7 m²) v Krušných horách - Boží Dar
Začátek dražby
19.2.2026, 18:00
Konec dražby
20.2.2026, 12:00
Minimální příhoz
30 000 Kč
Nejnižší podání
6 040 665 Kč
Aktuální cena

Dražba ještě nezačala.




Do zahájení dražby zbývá:

Číslo
4I/ND/25
Kategorie
Veřejná dražba nucená
Adresa
Popis

Výjimečná investice pro prvního majitele na místě, kde Vám žádná další výstavba nevezme výhled.

3D prohlídka: https://my.matterport.com/show/?m=8z2qsFJYrUS

Ráj zimních sportů, procházek a cyklistiky přímo za dveřmi: pár metrů od domu naběhnete na běžkařskou Krušnohorskou magistrálu (120 km upravovaných tras), když není sníh najedete na stejném místě na cyklostezku, nebo se půjdete projít malebnou stezkou Božídarského rašeliniště. Celoročně můžete vzít své ratolesti na dobrodružnou Ježíškovu cestu. To vše máte pár kroků od domu s nádherným výhledem.

Lokalita nabízí bezkonkurenční vyžití pro lyžaře všech úrovní.

Nadstandardní apartmán v komorním domě (pouze 5 jednotek) s parkovacím stáním a výlučným užíváním části pozemku.

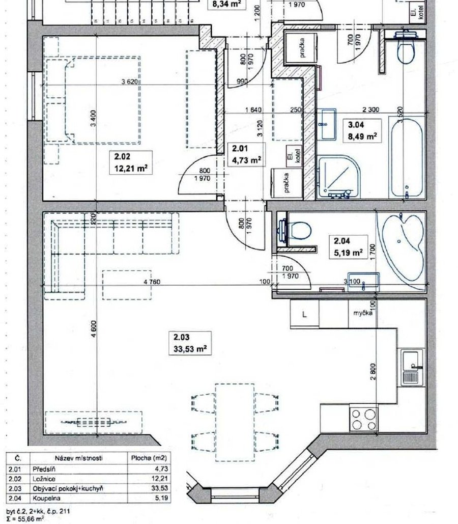
Dispozice:

Název

Podlahová plocha

předsíň

4,73 m2

ložnice

12,21 m2

obývací pokoj s kk

33,53 m2

koupelna

5,19 m2

CELKEM

55,66 m2

technická místnost pro byty 1, 2, 3

2,00 m2

 

Bezproblémový příjezd po asfaltové komunikaci, velká parkovací plocha. Celkově v místě jen 5 apartmánů, vybudovány ve vysokém standardu, podlahové vytápění, kvalitní izolace, použity moderní materiály a technologie. Veškeré IS v místě. Boží Dar nabízí restaurace, kavárny, obchody a další občanskou vybavenost.

Prohlídka:

9. 2. 2026 ve 13:00 hod. 


Sraz zájemců o prohlídku je před domem na adrese: Boží Dar 252, 362 62 Boží Dar. 

Pokud vlastník nebo osoba, která má předmět dražby v držení nebo nájmu, neumožní řádnou prohlídku předmětu dražby, bude prohlídka provedena v rámci možností. 


Zodpovědná osoba:

Emílie Švanová

E-mail: emilie.svanova@gavlas.cz

Mobil: 777 721 518

Tel.: 221 666 666

 

více
 

Chcete se stát účastníkem této dražby?
Klikněte na tlačítko

Popis objektu

Výjimečná investice pro prvního majitele na místě, kde Vám žádná další výstavba nevezme výhled.

3D prohlídka: https://my.matterport.com/show/?m=8z2qsFJYrUS

Ráj zimních sportů, procházek a cyklistiky přímo za dveřmi: pár metrů od domu naběhnete na běžkařskou Krušnohorskou magistrálu (120 km upravovaných tras), když není sníh najedete na stejném místě na cyklostezku, nebo se půjdete projít malebnou stezkou Božídarského rašeliniště. Celoročně můžete vzít své ratolesti na dobrodružnou Ježíškovu cestu. To vše máte pár kroků od domu s nádherným výhledem.

Lokalita nabízí bezkonkurenční vyžití pro lyžaře všech úrovní.

Nadstandardní apartmán v komorním domě (pouze 5 jednotek) s parkovacím stáním a výlučným užíváním části pozemku.

Dispozice:

Název

Podlahová plocha

předsíň

4,73 m2

ložnice

12,21 m2

obývací pokoj s kk

33,53 m2

koupelna

5,19 m2

CELKEM

55,66 m2

technická místnost pro byty 1, 2, 3

2,00 m2

 

Bezproblémový příjezd po asfaltové komunikaci, velká parkovací plocha. Celkově v místě jen 5 apartmánů, vybudovány ve vysokém standardu, podlahové vytápění, kvalitní izolace, použity moderní materiály a technologie. Veškeré IS v místě. Boží Dar nabízí restaurace, kavárny, obchody a další občanskou vybavenost.

Prohlídka:

9. 2. 2026 ve 13:00 hod. 


Sraz zájemců o prohlídku je před domem na adrese: Boží Dar 252, 362 62 Boží Dar. 

Pokud vlastník nebo osoba, která má předmět dražby v držení nebo nájmu, neumožní řádnou prohlídku předmětu dražby, bude prohlídka provedena v rámci možností. 


Zodpovědná osoba:

Emílie Švanová

E-mail: emilie.svanova@gavlas.cz

Mobil: 777 721 518

Tel.: 221 666 666

 

Předmět dražby

Jednotka č. 211/2 vymezená podle občanského zákoníku (byt), jednotka je vymezena v: pozemku parc.č. St. 357/1, součástí je stavba: Boží Dar, č.p. 211, s vlastnictvím jednotky je spojen podíl o velikosti 557/2160 na společných částech nemovitosti - pozemcích parc.č. St. 357/1 a parc.č. 454/31, vše v katastrálním území Boží Dar, obec Boží Dar, včetně všech součástí a příslušenství. 


Chcete se stát účastníkem této dražby?
Klikněte na tlačítko
Soubory ke stažení


  Dražební vyhláška: 4IND25_Dražební vyhláška ND, B Dar 211-2.pdf
  Dodatek č. 1 k dražební vyhlášce: Dodatek č 1 k 4IND25_Dražební vyhláška ND, B Dar 211-2.pdf
  Osoby vyloučené z dražby.pdf
  Návod - jak se zúčastnit dražby_Boží Dar.pdf
  Znalecký posudek Boží Dar.pdf
  LV č. 512, k.ú. Boží Dar.pdf
  Odbor rozvoje a ÚP stanovisko.pdf
  Vyjádření sítě_Vododovy a kanalizace.pdf
  GasNet_vyjádření.pdf
  Stavební úřad souhlas.pdf
  Prohlášení vlastníka jednotka 211.pdf
  Prohlášení o zřízení služebnosti.pdf
  Kolaudace 2006.pdf
  Původní projektová dokumentace_půdorys.pdf
  Půdorys Matterport.pdf
  Výlučné užívání.pdf
  KS ORTO.pdf
  CEVD-drazebni-vyhlaska byt 211-2.pdf
  CEVD-2026-000069-dodatek-uprava-vyctu-prihlasenych-pohledavek.pdf

Umístění objektu

Adresa
Boží Dar 211, 362 62 Boží Dar

Fotogalerie

 

Máte otázky?
Kontaktujte nás